物件番号:130704
フロンティア御成門
2階
港区でオフィス移転をご検討の企業様へ。居抜きオフィス・セットアップオフィスなど最新の空室情報からご要望に合うオフィスをご提案。Stratectが移転をサポートします。
Swipe
月額合計
相談
賃料
相談
共益費
込
面積
157.70坪
(521.32㎡)
(521.32㎡)
入居日
相談
この物件について
お問い合わせする
お問い合わせする
お電話でのご相談も
承ります
承ります
東京
03-6260-7395
営業時間 平日9:00~18:00
所在地・アクセス
所在地
東京都港区西新橋3-25-33
エリア
新橋・汐留、 虎ノ門・愛宕・神谷町
最寄駅
都営三田線 御成門駅 徒歩2分
東京メトロ日比谷線 神谷町駅 徒歩6分
東京メトロ日比谷線 神谷町駅 徒歩6分
賃貸条件
賃料(坪単価)
相談
礼金
-
共益費(坪単価)
込
償却
-
月額合計(坪単価)
相談
面積
157.70坪
(521.32㎡)
(521.32㎡)
敷金・保証金
12ヶ月
入居日
相談
更新料
-
契約形態
定期借家契約
建物詳細
構造
SRC
土日エントランス
オープン
オープン
-
規模
地上8階地下1階
天井高
2,800mm以上
2,800mm以上
-
竣工
1985年09月
駐車場
-
設備
こだわり設備
男女トイレ別
OAフロア
新耐震基準
エレベーター2基以上
その他の設備
セントラル空調
エレベーター
大型・高層
スタッフコメント
企業の成長を見据えたオフィス選びをサポート。レイアウトや条件交渉、入居後の運用まで見据えたご提案が可能です。まずはお気軽に条件相談・内見依頼ください。
物件詳細
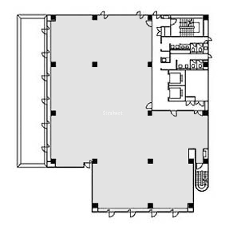
間取り図
contact
この物件について問い合わせる
お電話でのご相談も承ります
東京
03-6260-7395
営業時間 平日9:00~18:00
現在募集中のその他の区画
(募集中の総面積:157.70坪 / 521.32㎡)
※チェックボックスにチェックを入れると、複数の物件について一度にお問合せできます。
メールでのお問い合わせはこちら
お電話でのご相談も承ります
Neighborhood
条件の似ている物件
Recommend
同じエリアの人気物件
この物件について詳しく知りたい方は