物件番号:20531
青山サンクレストビル
5階
港区でオフィス移転をご検討の企業様へ。居抜きオフィス・セットアップオフィスなど最新の空室情報からご要望に合うオフィスをご提案。Stratectが移転をサポートします。
Swipe
月額合計
相談
賃料
相談
共益費
込
面積
79.88坪
(264.07㎡)
(264.07㎡)
入居日
即
この物件について
お問い合わせする
お問い合わせする
お電話でのご相談も
承ります
承ります
東京
03-6260-7395
営業時間 平日9:00~18:00
所在地・アクセス
所在地
東京都港区北青山2-13-5
エリア
青山・表参道・外苑前
最寄駅
東京メトロ銀座線 外苑前駅 徒歩2分
賃貸条件
賃料(坪単価)
相談
礼金
-
共益費(坪単価)
込
償却
-
月額合計(坪単価)
相談
面積
79.88坪
(264.07㎡)
(264.07㎡)
敷金・保証金
相談
入居日
即
更新料
-
契約形態
定期借家契約
建物詳細
構造
SRC
土日エントランス
オープン
オープン
-
規模
地上8階地下2階
天井高
2,800mm以上
2,800mm以上
-
竣工
1979年09月
駐車場
-
設備
こだわり設備
男女トイレ別
新耐震基準
エレベーター2基以上
その他の設備
セントラル空調
エレベーター
スタッフコメント
企業の成長を見据えたオフィス選びをサポート。レイアウトや条件交渉、入居後の運用まで見据えたご提案が可能です。まずはお気軽に条件相談・内見依頼ください。
物件詳細
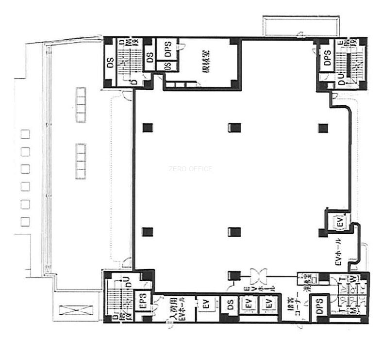
間取り図
contact
この物件について問い合わせる
お電話でのご相談も承ります
東京
03-6260-7395
営業時間 平日9:00~18:00
現在募集中のその他の区画
(募集中の総面積:738.10坪 / 2,440.00㎡)
※チェックボックスにチェックを入れると、複数の物件について一度にお問合せできます。
メールでのお問い合わせはこちら
お電話でのご相談も承ります
Neighborhood
条件の似ている物件
Recommend
同じエリアの人気物件
この物件について詳しく知りたい方は