物件番号:131514
カテリーナ柳通りビル
4階
新宿区でオフィス移転を検討中の企業様へ。Stratectが居抜き・セットアップなど豊富な物件から最適なオフィスをご提案。物件探しから移転まで一括サポートします。
Swipe
月額合計
相談
賃料
相談
共益費
98,868円(@2,800円)
【税込:108,755円】
【税込:108,755円】
面積
35.31坪
(116.73㎡)
(116.73㎡)
入居日
2026/05/11
この物件について
お問い合わせする
お問い合わせする
お電話でのご相談も
承ります
承ります
東京
03-6260-7395
営業時間 平日9:00~18:00
所在地・アクセス
所在地
東京都新宿区新宿1-18-10
エリア
大久保・東新宿
最寄駅
東京メトロ丸ノ内線 新宿御苑前駅 徒歩3分
東京メトロ丸ノ内線 新宿三丁目駅 徒歩3分
都営新宿線 新宿三丁目駅 徒歩6分
東京メトロ副都心線 新宿三丁目駅 徒歩6分
東京メトロ丸ノ内線 新宿三丁目駅 徒歩3分
都営新宿線 新宿三丁目駅 徒歩6分
東京メトロ副都心線 新宿三丁目駅 徒歩6分
賃貸条件
賃料(坪単価)
相談
礼金
-
共益費(坪単価)
98,868円(@2,800円)
【税込:108,755円】
【税込:108,755円】
償却
-
月額合計(坪単価)
相談
面積
35.31坪
(116.73㎡)
(116.73㎡)
敷金・保証金
12ヶ月
入居日
2026/05/11
更新料
-
契約形態
普通賃貸借契約
建物詳細
構造
SRC
土日エントランス
オープン
オープン
-
規模
地上9階
天井高
2,800mm以上
2,800mm以上
-
竣工
1989年09月
駐車場
-
設備
こだわり設備
個別空調
その他の設備
エレベーター
スタッフコメント
企業の成長を見据えたオフィス選びをサポート。レイアウトや条件交渉、入居後の運用まで見据えたご提案が可能です。まずはお気軽に条件相談・内見依頼ください。
物件詳細
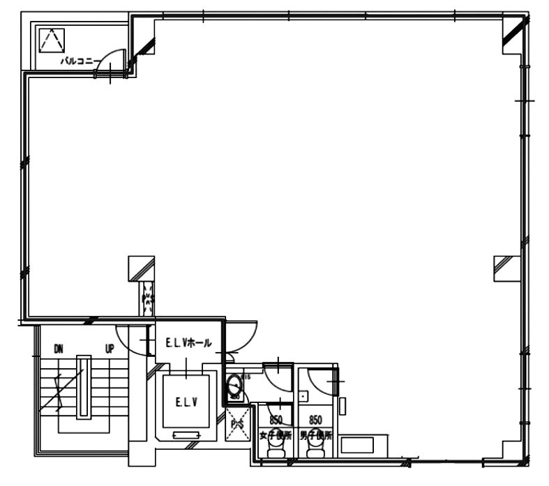
間取り図
contact
この物件について問い合わせる
お電話でのご相談も承ります
東京
03-6260-7395
営業時間 平日9:00~18:00
現在募集中のその他の区画
(募集中の総面積:35.31坪 / 116.73㎡)
※チェックボックスにチェックを入れると、複数の物件について一度にお問合せできます。
メールでのお問い合わせはこちら
お電話でのご相談も承ります
Neighborhood
条件の似ている物件
Recommend
同じエリアの人気物件
この物件について詳しく知りたい方は