物件番号:120137
JP-BASE渋谷
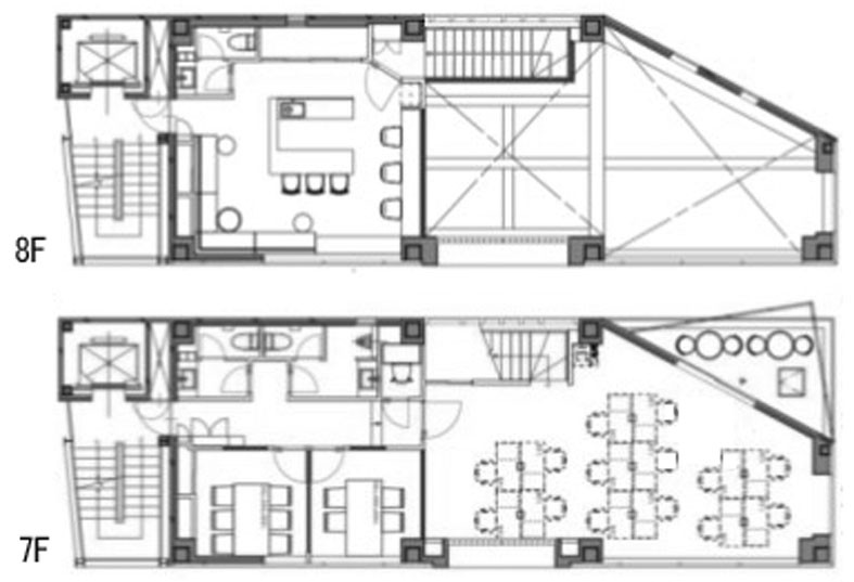
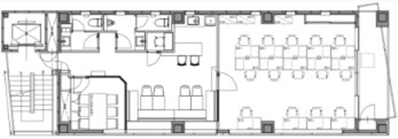
7~8階
渋谷区でオフィス移転を検討中の企業様へ。Stratectが居抜き・セットアップなど豊富な物件から最適なオフィスをご提案。物件探しから移転まで一括サポートします。
Swipe
月額合計
1,569,750円(@39,000円)
【税込:1,726,725円】
【税込:1,726,725円】
賃料
1,569,750円(@39,000円)
【税込:1,726,725円】
【税込:1,726,725円】
共益費
賃料に含む
面積
40.25坪
(133.06㎡)
(グロス)
(133.06㎡)
(グロス)
入居日
2026/07/01
この物件について
お問い合わせする
お問い合わせする
お電話でのご相談も
承ります
承ります
東京
03-6260-7395
営業時間 平日9:00~18:00
所在地・アクセス
所在地
東京都渋谷区東2-17-9
エリア
渋谷、 恵比寿・代官山・広尾
最寄駅
JR山手線 恵比寿駅 徒歩8分
東京メトロ日比谷線 恵比寿駅 徒歩8分
東京メトロ銀座線 渋谷駅 徒歩12分
東京メトロ日比谷線 恵比寿駅 徒歩8分
東京メトロ銀座線 渋谷駅 徒歩12分
賃貸条件
賃料(坪単価)
1,569,750円(@39,000円)
【税込:1,726,725円】
【税込:1,726,725円】
礼金
-
共益費(坪単価)
賃料に含む
償却
0ヶ月
月額合計(坪単価)
1,569,750円(@39,000円)
【税込:1,726,725円】
【税込:1,726,725円】
面積
40.25坪
(133.06㎡)
(グロス)
(133.06㎡)
(グロス)
敷金・保証金
3ヶ月
入居日
2026/07/01
更新料
1ヶ月
契約形態
定期借家契約
建物詳細
構造
鉄骨造
土日エントランス
オープン
オープン
-
規模
地上8階
天井高
2,800mm以上
2,800mm以上
-
竣工
1986年
駐車場
-
設備
こだわり設備
個別空調
OAフロア
新耐震基準
居抜き・セットアップ
その他の設備
エレベーター
物件詳細
間取り図
contact
この物件について問い合わせる
お電話でのご相談も承ります
東京
03-6260-7395
営業時間 平日9:00~18:00
現在募集中のその他の区画
(募集中の総面積:125.34坪 / 414.34㎡)
※チェックボックスにチェックを入れると、複数の物件について一度にお問合せできます。
メールでのお問い合わせはこちら
お電話でのご相談も承ります
Neighborhood
条件の似ている物件
Recommend
同じエリアの人気物件
この物件について詳しく知りたい方は